Magie, anges et démons dans la tradition juiveExposition terminée11a 12s 05j 10h 36m 29s
11a 12s 05j 10h 36m 29s
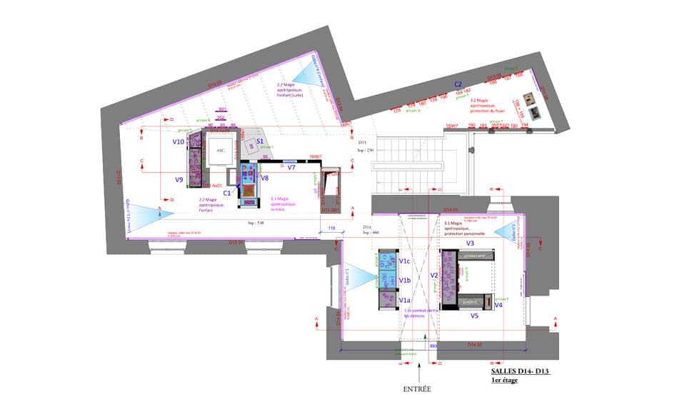
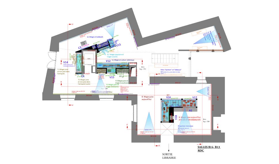
03.2015exposition temporaireSurface : 340 M²

1/7
Musée d’art et d’histoire du Judaïsme,Paris, France
Maitre d'ouvrage
Musée d’art et d’histoire du Judaïsme
Collaboration
c-album (graphisme)

2/7

3/7

5/7

4/7

7/7

6/7