Musée des Arts de la Marionnette et des OmbresPermanent24a 37s 02j 04h 24m 03s
24a 37s 02j 04h 24m 03s
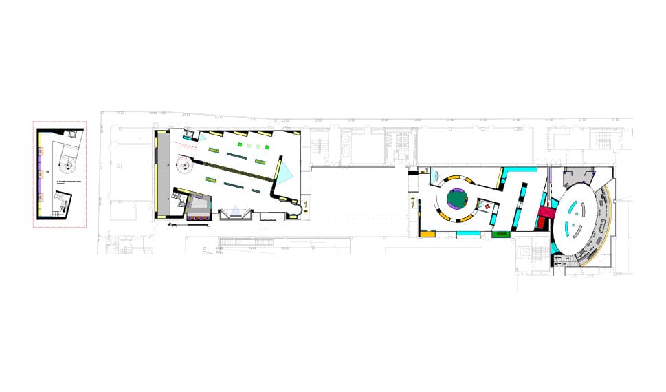
06.2016exposition permanenteSurface : 2000 M²

1/9
City Museum,Chengdu, Chine
Maitre d'ouvrage
City Museum de Chengdu
Collaboration
Zaijia Huang (graphisme), Gélatic (éclairage)

2/9

3/9

5/9

4/9

6/9

7/9

9/9

8/9