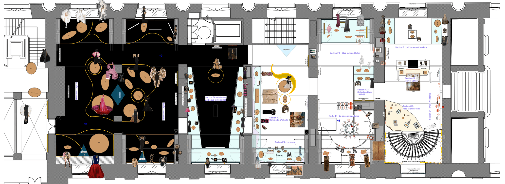
Shocking ! Les mondes surréalistes d’Elsa SchiaparelliExposition terminée03a 42s 06j 01h 20m 14s
03a 42s 06j 01h 20m 14s
07.2022exposition temporaireSurface : 1500 M²

1/13
Musée des Arts Décoratifs,Paris, France
Collaboration
Anamorphée (graphisme), ACL (éclairage)
Maitrise d'ouvrage
MAD & Schiaparelli
Crédit photos
Luc Boegly

3/13

2/13

4/13

5/13

7/13

6/13

8/13

9/13

11/13

10/13

12/13
