Paparazzi ! Photographes, stars et artistesExposition terminée12a 12s 06j 04h 31m 38s
12a 12s 06j 04h 31m 38s
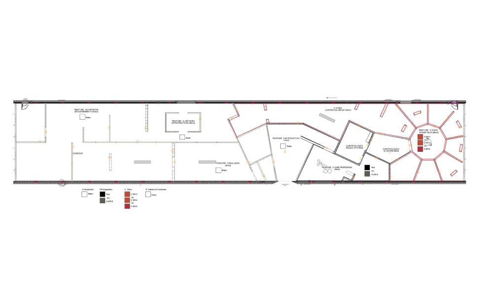
02.2014exposition temporaireSurface : 1200 M²

1/7
Centre Pompidou,Metz, France
Maitre d'ouvrage
Centre Pompidou-Metz

3/7

2/7

5/7

4/7

7/7

6/7