Nous les ArbresExposition terminée06a 47s 02j 11h 26m 26s
06a 47s 02j 11h 26m 26s
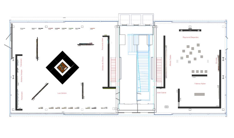
07.2019exposition temporaireSurface : 1000 M²

1/13
Fondation Cartier,Paris, France
Maitre d'ouvrage
Fondation Cartier
Collaboration
Undo Redo (graphisme), Gélatic (éclairage)
Crédit photos
© Luc Boegly

2/13

3/13

5/13

4/13

7/13

6/13

9/13

8/13

11/13

10/13

13/13
12/13