Noëlla PontoisExposition terminée13a 16s 06j 09h 55m 18s
13a 16s 06j 09h 55m 18s
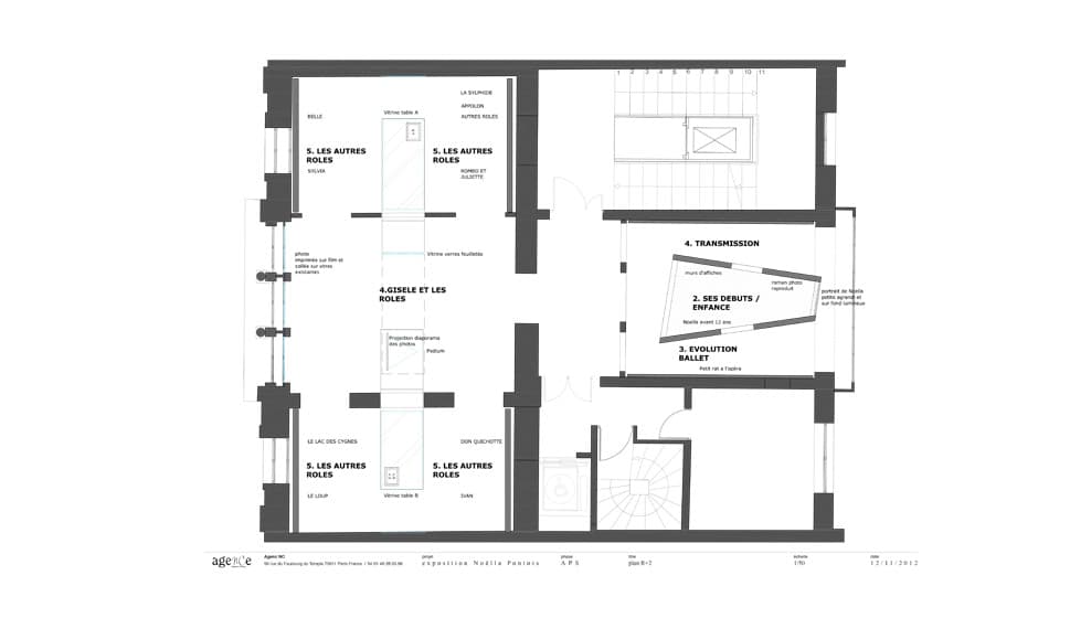
02.2013exposition temporaireSurface : 380 M²

1/11
Elephant Paname,Paris, France
Maitre d'ouvrage
Elephant Paname
Collaboration
Anamorphée (graphisme)

2/11

3/11

5/11

4/11

7/11

6/11

8/11

9/11

11/11
10/11