Tiffany&Co - Vision & VirtuosityClosed03y 38w 04d 17h 52m 48s
03y 38w 04d 17h 52m 48s
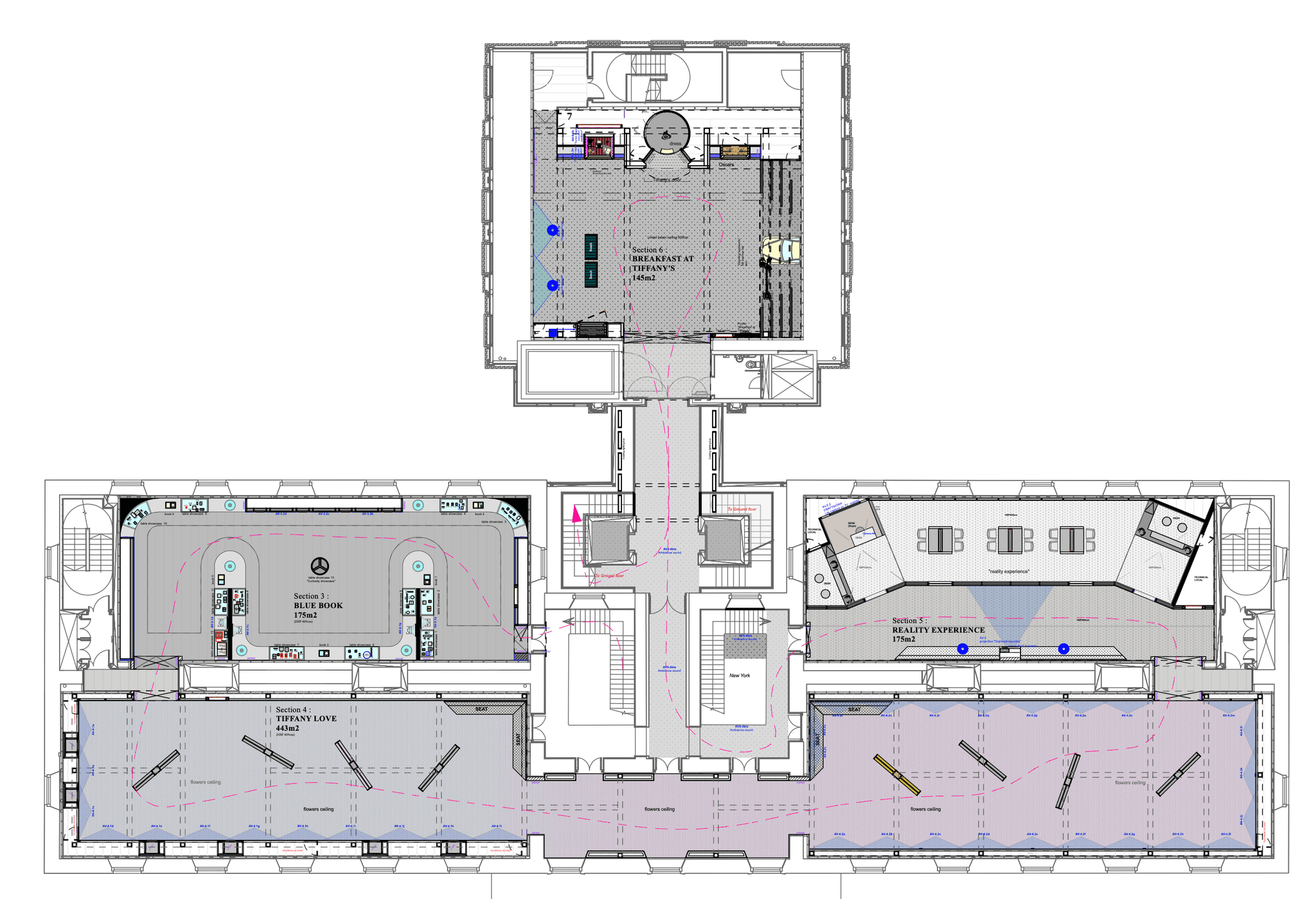
06.2022temporary exhibitionArea : 1600 M²

1/14
Saatchi Gallery,Londres, UK
Collaboration
DHA (Lighting), Internally (Graphic design), Méduse (design and production audiovisual)
Owner
Tiffany&Co
Photo Credit
© Ricky Zehavi

2/14

3/14

4/14

5/14

6/14

7/14

8/14

10/14

9/14

11/14

12/14

13/14

14/14