Grayson Perry Vanity, Identity, SexualityClosed07y 28w 05d 22h 52m 17s
07y 28w 05d 22h 52m 17s
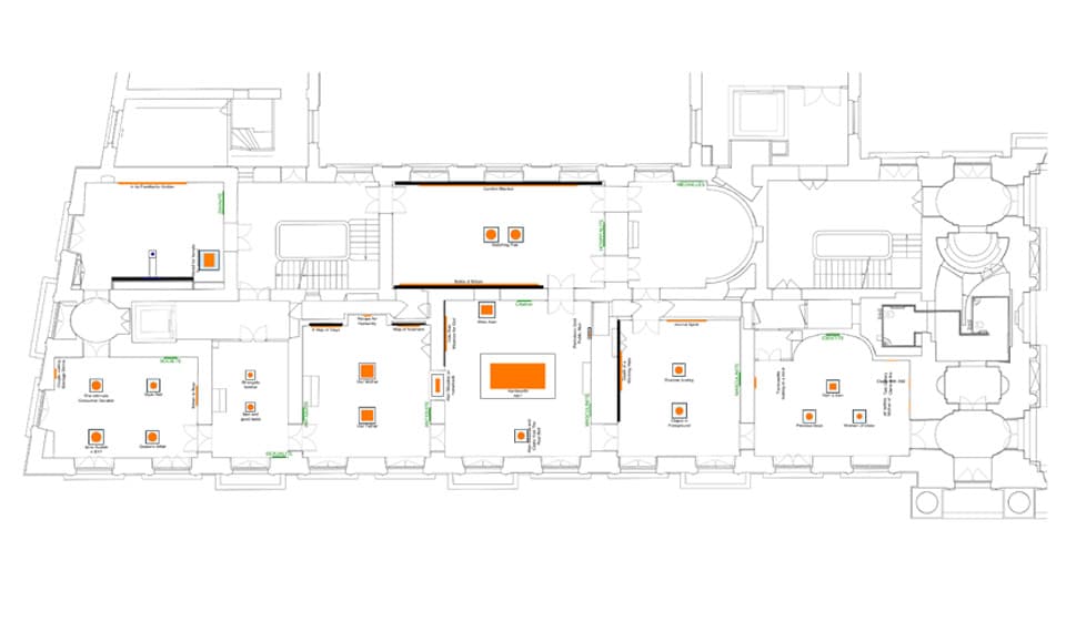
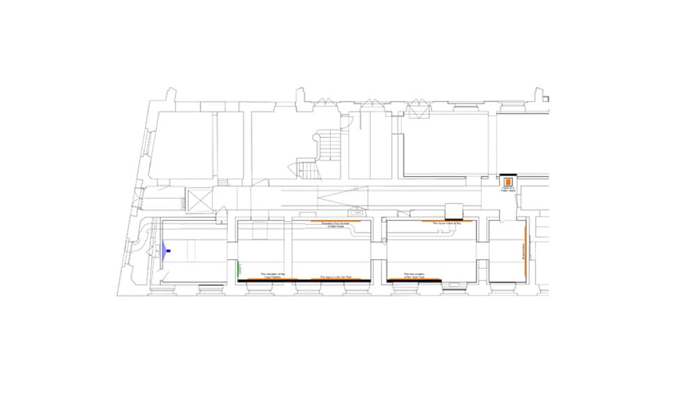
10.2018temporary exhibitionArea : 1000 M²

1/11
The Monnaie de Paris,Paris, France
Owner
The Monnaie de Paris
Collaboration
Anamorphée (graphic design)

3/11

2/11

5/11

4/11

6/11

7/11

9/11

8/11

11/11
10/11