Agnès b. Store, Galeries LafayettePermanent12y 32w 01d 24m 38s
12y 32w 01d 24m 38s
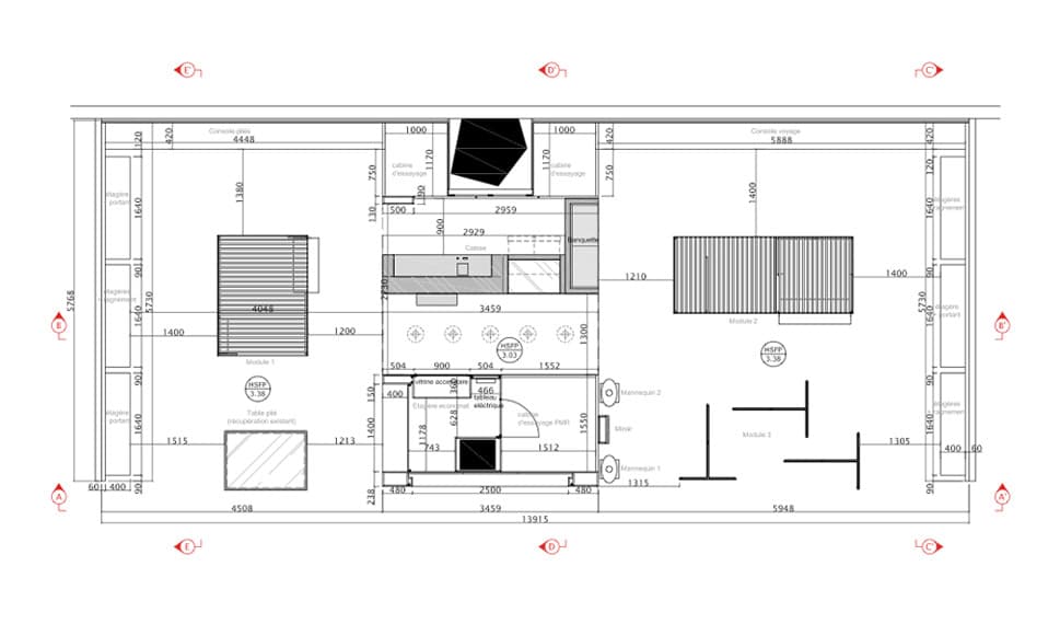
10.2013interior designArea : 80 M²

1/11
Galeries Lafayette,Paris 9th district, France
Owner
Agnès b.

3/11
2/11

5/11

4/11

6/11

7/11

9/11

8/11
11/11

10/11

Agnès b.







